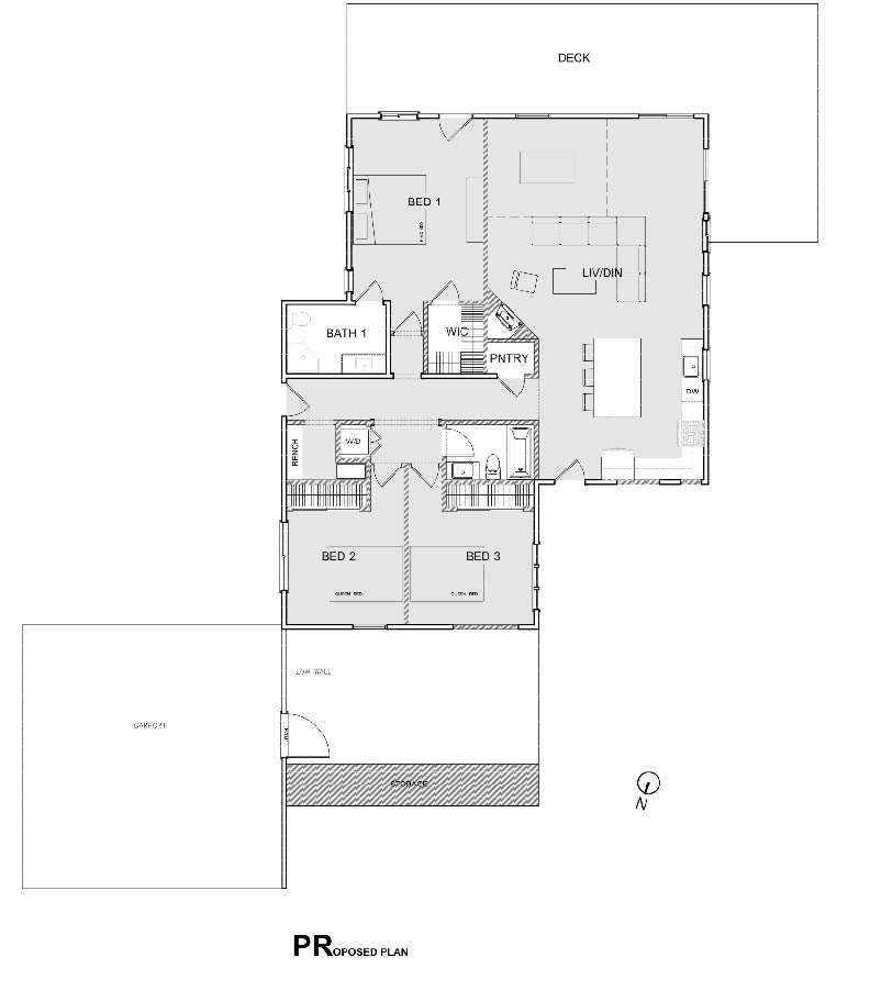
Atascadero residence 01-2023
Private Residence // Addition and Renovation
Atascadero, CA
Additional SF: approx. 1889 sq. ft.
Unbuilt
Private Residence // Addition and Renovation
Atascadero, CA
Additional SF: approx. 1889 sq. ft.
Unbuilt
A renovation reorients the house to focus on an organized living zone while accessing the desirable views of the site and access to natural daylight. The living area and dining area are opened to connect the house to the grand yard for indoor/ outdoor living afforded by the California climate

